Drawings and Construction

RAMTEJ Technologies Corp., Hiroshima, deals with Basic to Detailed Drawings, Construction of PCa, Structual Frameworks and Buildings

Drawings Flow:

Receive Order
>
Team Formation
>
Create Drawings
>
Coordinate with Site
>
Modifications
>
Coordinate with Site
>
Final Drawings
>
Acceptance
>
Order Close

Construction Process Flow:

Detailed Drawings:

1 / 12
Spherical Section Interior
3D view of lower part of sphere from inside.
2 / 12
Step Beam Assembly
Enlarged drawing of interface with other components.
3 / 12
Beam Reinforcement 3D
3D reinforcement for one step beam member.
4 / 12
Slab Floor
Floor slab has ribs, integrated structure with beams.
5 / 12
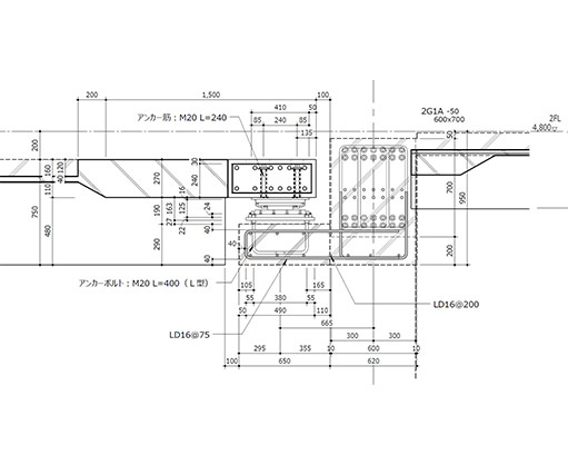
Seismic Isolation Cross-Section
Area where floor and beam meet the seismic isolation device at building joint.
6 / 12
Thin Column Zone
Area where beam's precast concrete wiring meets the column.
7 / 12
Overall 3D Plan
A 3D representation of the entire building.
8 / 12
Fastners
Detailed drawing of hardware used to attach PCa blocks.
9 / 12
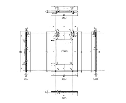
Assembly Drawing
Drawing for factory manufacturing.
10 / 12
Exploded View
Drawing showing connections between PCa blocks and main frame (steel frame).
11 / 12
Floor Plan
Drawing showing floor plan of PCa blocks.
12 / 12
Elevation Plan
Drawing showing elevation plan of PCa.